松戸市五香西2丁目中古一戸建て

更新日:2025/10/05

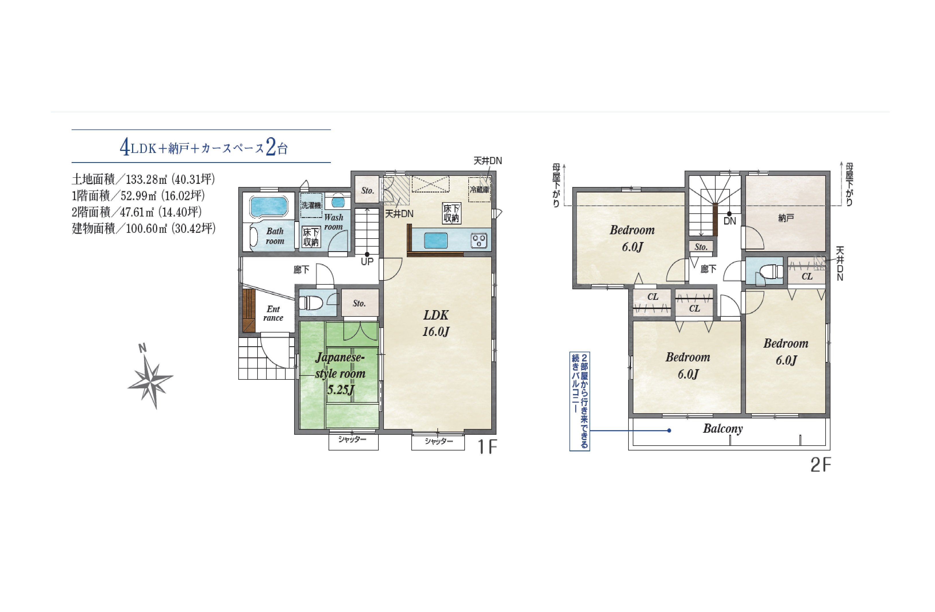
南側公道6mで陽当たり良好の開発分譲地☆リビング16帖+和室5.25帖の4LDK

  • 前面道路は南側公道6mとひろびろ◎駐車もらくらく♪

    前面道路は南側公道6mとひろびろ◎駐車もらくらく♪

  • 4LDK+S(納戸)でリビング16帖◎

    4LDK+S(納戸)でリビング16帖◎

  • うれしい駐車スペース2台♪

    うれしい駐車スペース2台♪

  • 南向きのリビングは陽当たり良好♪ひろびろ16帖♪

    南向きのリビングは陽当たり良好♪ひろびろ16帖♪

  • 扉を開ければリビングと一体感のある空間に。

    扉を開ければリビングと一体感のある空間に。

  • キッチンからリビング全体が見渡せます♪

    キッチンからリビング全体が見渡せます♪

  • 家族団らんに嬉しい対面キッチン◆食洗器付き

    家族団らんに嬉しい対面キッチン◆食洗器付き

  • 家族分の食器も余裕でしまえる収納力

    家族分の食器も余裕でしまえる収納力

  • 後片付けがラクになる、うれしい設備◎

    後片付けがラクになる、うれしい設備◎

  • ◆換気乾燥機付き1坪◆タイプユニットバス

    ◆換気乾燥機付き1坪◆タイプユニットバス

  • ◇三面鏡タイプの洗面化粧台◇

    ◇三面鏡タイプの洗面化粧台◇

  • 6帖の洋室

    6帖の洋室

  • 6帖の洋室

    6帖の洋室

  • 季節家電やストック品もまとめて収納できる納戸。

    季節家電やストック品もまとめて収納できる納戸。

  • お出かけ前に身だしなみチェックできるミラー付き

    お出かけ前に身だしなみチェックできるミラー付き

物件の特徴

* … * … * … * …* … * …* … * … * … * …* … * …
▼おすすめポイント▼

◇4LDK+S広い納戸は3.75帖ありますので多目的にご利用頂けます!
◇うれしい駐車スペース2台♪
◇全室南向きで日当たり良好です◎
◇小学校・中学校まで徒歩10分圏内!
◇独立和室の4LDKタイプで各部屋有効にご利用出来ます◎
◇南向きで明るい陽射しが差し込むリビング16帖◎
◇2部屋から出入り可能なワイドバルコニー
~新築時に「長期優良住宅」「住宅性能評価書」を受けており安心が数値で見える住宅~
* … * … * … * …* … * …* … * … * … * …* … * …

物件情報

物件概要
所在地 松戸市五香西2丁目
販売価格 3,380万円
都市計画 市街化区域 用途指定 第一種低層住居専用地域
建ぺい率 50% 容積率 100%
接道 南6m幅(接道幅9,6m)
物件について
土地面積 133.28㎡ (40.31坪) 建物面積 100.60㎡ (30.43坪)  1F / 54.24㎡ (16.40坪)  2F / 45.95㎡ (13.89坪)
間取り 4LDK+S(納戸) 構造 木造サイディング造スレート葺き2階建て(在来工法)
建築確認番号 カースペース 2台
交通 京成松戸線「五香」駅 徒歩14分
他私道負担 無し
設備 公営水道、本下水、都市ガス、東京電力
建築年 2015年2月/平成27年2月(築10年) 入居予定日 相談
その他

【取引態様】媒介
防火地域   ・・・なし
高度地区等  ・・・高度地区
埋蔵文化財  ・・・なし

更新日 2025/10/05

設備・サービス

居室関連
  • 全居室クロゼット付
  • 全室南窓
キッチン関連
  • 対面カウンターキッチン
  • 食器洗浄乾燥機
  • 床下収納
  • システムキッチン
その他水廻り関連
  • 浴室換気乾燥機
  • 1Fウォシュレット
  • 2Fウォシュレット
構造関連
  • 在来工法
ドア/窓/サッシ等
バリアフリー関連
  • 手すり付階段
その他
  • TVモニター付インターホン
  • ワイドバルコニー
  • 耐震等級3(最高等級)
  • 日当たり良好

周辺・アクセス

  • 市立松飛台小学校まで200m

    市立松飛台小学校まで200m

  • 市立牧野原中学校まで650m

    市立牧野原中学校まで650m

  • あさひ幼稚園まで940m

    あさひ幼稚園まで940m

  • 市立松飛台保育所まで450m

    市立松飛台保育所まで450m

  • ベルクス松飛台店まで910m

    ベルクス松飛台店まで910m

  •  ウェルシア松戸五香西店まで670m

    ウェルシア松戸五香西店まで670m

ライフインフォメーション
教育施設

市立松飛台小学校       ・・・約200m(徒歩3分)
市立牧野原中学校       ・・・約650m(徒歩9分)
あさひ幼稚園         ・・・約940m(徒歩12分)
市立松飛台保育園       ・・・約450m(徒歩6分)

買物施設

ベルクス松飛台店         ・・・約910m(徒歩12分)
ウエルシア松戸五香西店      ・・・約670m(徒歩9分)
ローソン松戸松飛台店       ・・・約540m(徒歩7分)

その他施設

松戸松飛台郵便局         ・・・約870m(徒歩11分)

お問い合わせ先

東栄ホームサービス株式会社

〒187-0002 東京都小平市花小金井1-4-7 
営業時間:9:00~17:30 
定休日:火・水曜日・年末年始等

TEL:0120-556-540 (担当:中村 庸一)  FAX:042-452-0815

まずはお気軽にお問い合わせください。

【宅地建物取引業者登録】東京都知事(1)第108253号 【所属団体】(一社)全国住宅産業協会会員・(一社)日本住宅リフォーム産業協会会員・(一社)リノベーション協議会会員

トップへ戻る