三鷹市上連雀8丁目中古一戸建て

更新日:2025/11/10

学校やスーパーが身近にそろう安心の環境。光と広さを感じる16帖LDKの3LDK。

  • 穏やかな街並みに馴染む、心地よいデザイン♪

    穏やかな街並みに馴染む、心地よいデザイン♪

  • 家族みんなが自然と集まる、明るい間取り♪

    家族みんなが自然と集まる、明るい間取り♪

  • 温水式床暖房のぬくもりに包まれる開放的なLDKは16帖!

    温水式床暖房のぬくもりに包まれる開放的なLDKは16帖!

  • 折り上げ天井が映える、上質なリビング空間

    折り上げ天井が映える、上質なリビング空間

  • 家族の会話が弾む対面式キッチン♪

    家族の会話が弾む対面式キッチン♪

  • ◆換気乾燥機付き1坪◆タイプユニットバス

    ◆換気乾燥機付き1坪◆タイプユニットバス

  • 清潔感とゆとりを感じる洗面スペース♪

    清潔感とゆとりを感じる洗面スペース♪

  • 勾配天井とロフトが生む、開放感ある空間設計◎

    勾配天井とロフトが生む、開放感ある空間設計◎

  • ロフト付きの洋室は6帖◎

    ロフト付きの洋室は6帖◎

  • 2階洋室は個性が光る木のウォールパネル仕様◎

    2階洋室は個性が光る木のウォールパネル仕様◎

  • 印象的な木のウォールパネルが映える上質な洋室6.75帖!

    印象的な木のウォールパネルが映える上質な洋室6.75帖!

  • 陽当たり良好な南向きのワイドバルコニー♪

    陽当たり良好な南向きのワイドバルコニー♪

  • 住まいの印象を引き立てる上品な玄関デザイン

    住まいの印象を引き立てる上品な玄関デザイン

物件の特徴

* … * … * … * …* … * …* … * … * … * …* … * …
▼おすすめポイント▼
◇リビングには温水式床暖房を採用。冬も足元から心地よく♪
◇家族の会話が弾む、開放的な対面式キッチン◎
◇空間を彩る木のウォールパネルが、お部屋をセンス良く演出。
◇ロフトスペース付きで、収納にも趣味にも使える多目的空間。
◇忙しい毎日にうれしい、食器洗浄乾燥機付き♪
* … * … * … * …* … * …* … * … * … * …* … * …

物件情報

物件概要
所在地 三鷹市上連雀8丁目
販売価格 6,480万円
都市計画 市街化区域 用途指定 第一種低層住居専用地域
建ぺい率 40% 容積率 80%
接道 東4.0m幅(接道幅10.1m)
物件について
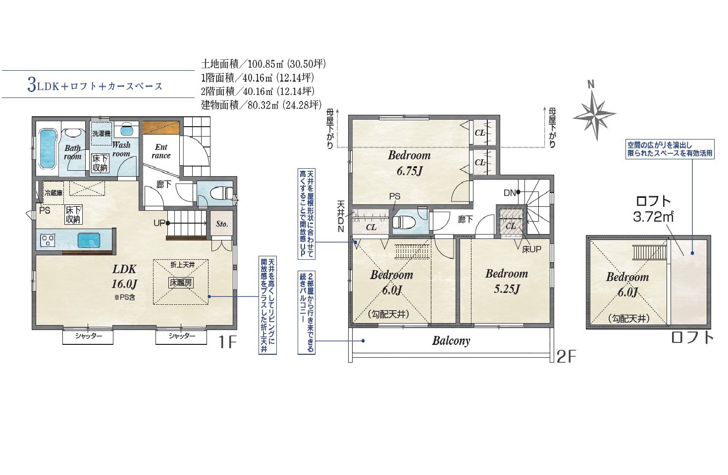
土地面積 100.85㎡ (30.50坪) 建物面積 80.32㎡ (24.28坪)  1F / 40.16㎡ (12.14坪)  2F / 40.16㎡ (12.14坪)
間取り 3LDK 構造 木造サイディング造スレート葺き2階建て(在来工法)
建築確認番号 カースペース 1台
交通 JR中央線、JR中央・総武線各停「三鷹」駅 徒歩27分 またはバス 14分 バス停「医師会館」まで 徒歩4分
他私道負担 なし
設備
建築年 2009年1月/平成21年(築16年) 入居予定日 相談
その他

【取引態様】媒介
防火地域   ・・・なし
高度地区等  ・・・高度地区
埋蔵文化財  ・・・なし

更新日 2025/11/10

設備・サービス

居室関連
  • 温水式床暖房
  • 全居室クロゼット付
  • フローリング
  • リビング階段
  • 折り上げ天井
キッチン関連
  • 対面カウンターキッチン
  • 食器洗浄乾燥機
  • 床下収納
  • システムキッチン
その他水廻り関連
  • 浴室換気乾燥機
構造関連
ドア/窓/サッシ等
バリアフリー関連
  • 手すり付階段
その他
  • 勾配天井
  • 耐震等級3(最高等級)
  • 日当たり良好

周辺・アクセス

  • 市立南浦小学校まで510m

    市立南浦小学校まで510m

  • 市立第一中学校まで480m

    市立第一中学校まで480m

  • 三鷹若葉幼稚園まで470m

    三鷹若葉幼稚園まで470m

  • 三鷹ちしろの木保育園まで845m

    三鷹ちしろの木保育園まで845m

  • 山中保育園まで770m

    山中保育園まで770m

  • サミットストア三鷹市役所前店まで450m

    サミットストア三鷹市役所前店まで450m

ライフインフォメーション
教育施設
市立南浦小学校     ・・・約540m(徒歩7分)
市立第一中学校     ・・・約480m(徒歩6分)
三鷹若葉幼稚園     ・・・約470m(徒歩6分)
三鷹ちしろの木保育園  ・・・約845m(徒歩11分)
山中保育園    ・・・約770m(徒歩10分)
買物施設
サミットストア三鷹市役所前店      ・・・約450m(徒歩6分)
スギ薬局三鷹市役所前店         ・・・約510m(徒歩7分)
ファミリーマート三鷹人見街道店     ・・・約220m(徒歩3分)
その他施設
三鷹郵便局  ・・・約640m(徒歩8分)

お問い合わせ先

東栄ホームサービス株式会社

〒187-0002 東京都小平市花小金井1-4-7 
営業時間:9:00~17:30 
定休日:火・水曜日・年末年始等

TEL:0120-556-540 (担当:中村 庸一)  FAX:042-452-0815

まずはお気軽にお問い合わせください。

【宅地建物取引業者登録】東京都知事(1)第108253号 【所属団体】(一社)全国住宅産業協会会員・(一社)日本住宅リフォーム産業協会会員・(一社)リノベーション協議会会員

トップへ戻る