船橋市南三咲3丁目中古一戸建て

更新日:2025/12/15

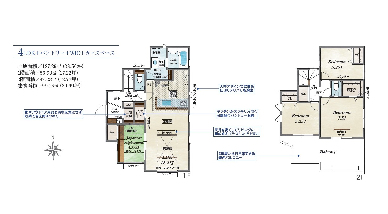
築3年☆南側解放感あり☆全20区画の開発分譲地♪太陽光発電システム付♪

  • 閑静な住宅街の全20区画開発分譲地☆築3年で外観もキレイです♪ 現地(2025年12月)撮影

    閑静な住宅街の全20区画開発分譲地☆築3年で外観もキレイです♪ 現地(2025年12月)撮影

  • リビング18.25帖+和室4.375帖の4LDK☆広々バルコニー☆

    リビング18.25帖+和室4.375帖の4LDK☆広々バルコニー☆

  • 南側にお庭があり、陽当りも良好です♪

    南側にお庭があり、陽当りも良好です♪

  • 陽当りぽかぽか19帖超リビングと続き間の和室でゆっくり過ごせます♪

    陽当りぽかぽか19帖超リビングと続き間の和室でゆっくり過ごせます♪

  • キッチンから和室にも目が届いて安心♪

    キッチンから和室にも目が届いて安心♪

  • リビングと続き間の和室♪書斎としてもお子さまの遊び場としても重宝♪

    リビングと続き間の和室♪書斎としてもお子さまの遊び場としても重宝♪

  • 家族との会話も楽しい人気の対面キッチン♪

    家族との会話も楽しい人気の対面キッチン♪

  • 食器洗い乾燥機付きで毎日のお皿洗いもラクラク♪

    食器洗い乾燥機付きで毎日のお皿洗いもラクラク♪

  • ◆換気乾燥機付き1坪◆タイプユニットバス

    ◆換気乾燥機付き1坪◆タイプユニットバス

  • シャワー水栓付、三面鏡タイプ洗面化粧台☆お手入れもラクラク♪

    シャワー水栓付、三面鏡タイプ洗面化粧台☆お手入れもラクラク♪

  • 陽当りも良く、風通しの良いお庭でお洗濯物も干せます♪

    陽当りも良く、風通しの良いお庭でお洗濯物も干せます♪

  • 2部屋から行き来できるワイドバルコニー♪

    2部屋から行き来できるワイドバルコニー♪

  • 2階南側7.5帖洋室

    2階南側7.5帖洋室

  • 2階北側5.25帖洋室

    2階北側5.25帖洋室

  • 2階南側5.25帖洋室

    2階南側5.25帖洋室

  • シューズインクローク付きで収納充実♪玄関収納はミラー付き♪

    シューズインクローク付きで収納充実♪玄関収納はミラー付き♪

物件の特徴

・。・。・。・。・。・。・。・。・。・。・。・。・。・。・。・。

▼おすすめポイント▼

◇太陽光発電システム付で電気代も節約♪
◇家族の時間がもっと豊かに。広々18帖超LDK+和室のリビングで家族団らん♪
◇シューズインクローク、ウォークインクローゼット、パントリーで収納充実♪
◇冬も快適♪床暖房でぽかぽか♪
◇南面ワイドバルコニーで、空と風を感じる暮らし
◇食洗機付きで家事ラクラク♪家族時間がもっと増えるおうち♪

・。・。・。・。・。・。・。・。・。・。・。・。・。・。・。・。





物件情報

物件概要
所在地 船橋市南三咲3丁目
販売価格 3,480万円
都市計画 市街化区域 用途指定 第一種低層住居専用地域
建ぺい率 50% 容積率 100%
接道 西6.0m幅(接道幅7,9m)
物件について
土地面積 127.29㎡ (38.5坪) 建物面積 99.16㎡ (29.99坪)  1F / 56.93㎡ (17.22坪)  2F / 42.23㎡ (12.77坪)
間取り 4LDK 構造 木造サイディング張りルーフィング葺き2階建て(在来工法)
建築確認番号 カースペース 1台
交通 京成松戸線「滝不動」駅 徒歩5分
他私道負担 私道持分/あり ( 618㎡の内20分の1 )
設備 公営水道、本下水、都市ガス、東京電力
建築年 2022年1月/令和4年(築3年) 入居予定日 相談
その他

【取引態様】媒介
防火地域   ・・・なし
高度地区等  ・・・なし
埋蔵文化財  ・・・なし

更新日 2025/12/15

設備・サービス

居室関連
  • 温水式床暖房
  • 全居室クロゼット付
  • ウォークインクロゼット
  • 折り上げ天井
キッチン関連
  • 人工大理石カウンターシステムキッチン
  • 対面カウンターキッチン
  • 食器洗浄乾燥機
  • 床下収納
  • システムキッチン
その他水廻り関連
  • 浴室換気乾燥機
  • 1Fウォシュレット
  • 2Fウォシュレット
構造関連
ドア/窓/サッシ等
バリアフリー関連
  • 手すり付階段
その他
  • 収納下駄箱(鏡付)
  • TVモニター付インターホン
  • ワイドバルコニー
  • 耐震等級3(最高等級)
  • 火災報知器

周辺・アクセス

  • 市立仁和小学校まで400m

    市立仁和小学校まで400m

  • 市立御滝中学校まで580m

    市立御滝中学校まで580m

  • 富士見幼稚園まで1170m

    富士見幼稚園まで1170m

  • 太陽の子船橋三咲保育園まで600m

    太陽の子船橋三咲保育園まで600m

  •  マルエツ金杉店まで930m

    マルエツ金杉店まで930m

  • ウエルシア船橋金杉店まで1330m

    ウエルシア船橋金杉店まで1330m

ライフインフォメーション
教育施設

市立二和小学校        ・・・約400m(徒歩5分)
市立御滝中学校        ・・・約720m(徒歩9分)
富士見幼稚園         ・・・約1160m(徒歩15分)
太陽の子船橋三咲保育園    ・・・約600m(徒歩8分)

買物施設

マルエツ金杉店          ・・・約930m(徒歩12分)
ウエルシア船橋金杉店       ・・・約1330m(徒歩17分)
セブンイレブン船橋滝不動駅前店  ・・・約590m(徒歩8分)

その他施設

船橋大穴郵便局         ・・・約980m(徒歩13分)

お問い合わせ先

東栄ホームサービス株式会社

〒187-0002 東京都小平市花小金井1-4-7 
営業時間:9:00~17:30 
定休日:火・水曜日・年末年始等

TEL:0120-556-540 (担当:中村 庸一)  FAX:042-452-0815

まずはお気軽にお問い合わせください。

【宅地建物取引業者登録】東京都知事(1)第108253号 【所属団体】(一社)全国住宅産業協会会員・(一社)日本住宅リフォーム産業協会会員・(一社)リノベーション協議会会員

トップへ戻る