小金井市貫井南町1丁目中古一戸建て

更新日:2025/10/31

【築4年】リビング温水式床暖房、全室南向きで陽当たり良好、駐車スペース2台可能です。

  • 【築4年】清潔感と温かみを感じる築浅の佇まい

    【築4年】清潔感と温かみを感じる築浅の佇まい

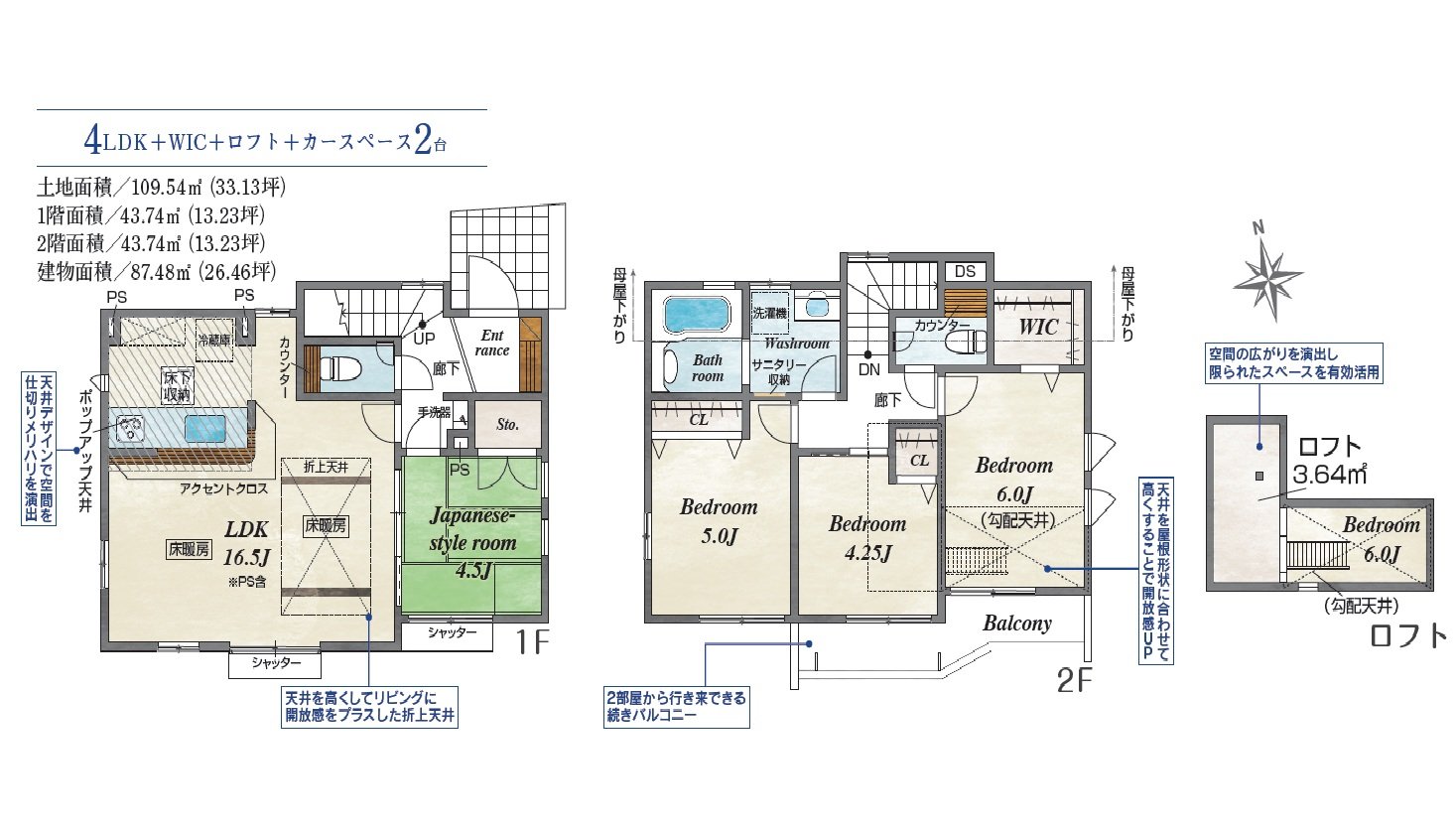
  • 4LDK+ロフトでリビング16.5帖◎

    4LDK+ロフトでリビング16.5帖◎

  • うれしい駐車スペース2台♪

    うれしい駐車スペース2台♪

  • 光とぬくもりが調和するくつろぎの空間♪

    光とぬくもりが調和するくつろぎの空間♪

  • リビング横の和室は有効にご利用出来ます

    リビング横の和室は有効にご利用出来ます

  • 落ち着きの中にモダンさを感じる琉球畳の和室。タタミ交換済み。

    落ち着きの中にモダンさを感じる琉球畳の和室。タタミ交換済み。

  • 家族団らんに嬉しい対面キッチン◆食洗器付き

    家族団らんに嬉しい対面キッチン◆食洗器付き

  • 家事のしやすさを考えた設備充実のキッチン

    家事のしやすさを考えた設備充実のキッチン

  • 換気乾燥機付き1坪タイプユニットバス

    換気乾燥機付き1坪タイプユニットバス

  • ◆洗面化粧台はW900の三面鏡◆

    ◆洗面化粧台はW900の三面鏡◆

  • 5帖の洋室

    5帖の洋室

  • 全部屋南向きで日当たり良好です

    全部屋南向きで日当たり良好です

  • ☆ロフト付き6帖の洋室☆

    ☆ロフト付き6帖の洋室☆

  • ひろびろ勾配天井ロフトスペース

    ひろびろ勾配天井ロフトスペース

  • 2部屋から行き来できる南向きのワイドバルコニー

    2部屋から行き来できる南向きのワイドバルコニー

  • ミラー付きのシューズBOX

    ミラー付きのシューズBOX

物件の特徴

* … * … * … * …* … * …* … * … * … * …* … * …
▼おすすめポイント▼

◇南からの光が差し込むリビングには温水式床暖房を採用
◇駐車スペース2台分確保。来客時や2台持ちにも対応。
◇全室南向きで日当たり良好です◎
◇全居室収納+WIC付きで片づけやすく、生活空間をすっきり保てます!
◇独立和室の4LDKタイプで各部屋有効にご利用出来ます◎
◇対面キッチンで家族の会話が弾むコミュニケーション設計◎
◇2部屋から出入り可能なワイドバルコニー
~新築時に「長期優良住宅」「住宅性能評価書」を受けており安心が数値で見える住宅~
* … * … * … * …* … * …* … * … * … * …* … * …

物件情報

物件概要
所在地 小金井市貫井南町1丁目
販売価格 5,780万円
都市計画 市街化区域 用途指定 第一種低層住居専用地域
建ぺい率 40% 容積率 80%
接道 東4m幅 私道 (接道幅9.7m)
物件について
土地面積 109.54㎡ (33.13坪) 建物面積 87.48㎡ (26.46坪)  1F / 43.74㎡ (13.23坪)  2F / 43.74㎡ (13.23坪)
間取り 4LDK 構造 木造サイディング造シングル葺き2階建て(在来工法)
建築確認番号 カースペース 2台
交通 JR中央線「武蔵小金井」駅 徒歩23分 またはバス10分「前原交番西」停歩4分
他私道負担 私道持分/あり ( 26㎡の内2分の1 )
設備 公営水道、本下水、都市ガス、東京電力
建築年 2021年11月/令和3年11月(築4年) 入居予定日 相談
その他

【取引態様】媒介
防火地域   ・・・なし
高度地区等  ・・・高度地区
埋蔵文化財  ・・・なし

更新日 2025/10/31

設備・サービス

居室関連
  • 温水式床暖房
  • 全居室クロゼット付
  • ウォークインクロゼット
  • 折り上げ天井
  • 全室南窓
キッチン関連
  • 対面カウンターキッチン
  • 食器洗浄乾燥機
  • 床下収納
  • システムキッチン
その他水廻り関連
  • 浴室換気乾燥機
  • 1Fウォシュレット
  • 2Fウォシュレット
構造関連
ドア/窓/サッシ等
バリアフリー関連
  • 手すり付階段
その他
  • 収納下駄箱(鏡付)
  • TVモニター付インターホン
  • ワイドバルコニー
  • 勾配天井
  • 耐震等級3(最高等級)
  • 日当たり良好
  • 火災報知器

周辺・アクセス

ライフインフォメーション
教育施設
市立前原小学校     ・・・約1000m(徒歩13分)
市立南中学校      ・・・約470m(徒歩6分)
府中新町幼稚園     ・・・約580m(徒歩8分)
光明第二保育園     ・・・約430m(徒歩6分)
買物施設
いなげや府中浅間町店        ・・・約610m(徒歩8分)
ドラッグセイムス浅間町店      ・・・約380m(徒歩5分)
セブンイレブン小金井東貫井南店   ・・・約150m(徒歩2分)
その他施設
小金井前原五丁目郵便局  ・・・約570m(徒歩7分)

お問い合わせ先

東栄ホームサービス株式会社

〒187-0002 東京都小平市花小金井1-4-7 
営業時間:9:00~17:30 
定休日:火・水曜日・年末年始等

TEL:0120-556-540 (担当:中村 庸一)  FAX:042-452-0815

まずはお気軽にお問い合わせください。

【宅地建物取引業者登録】東京都知事(1)第108253号 【所属団体】(一社)全国住宅産業協会会員・(一社)日本住宅リフォーム産業協会会員・(一社)リノベーション協議会会員

トップへ戻る